일상생활에서 평면도는 공간 배치와 디자인을 직관적으로 표현한 것으로 우리 삶의 모든 면에 침투해 왔습니다. 집 장식, 사무실 레이아웃, 매장 디스플레이 등 평면도는 중요한 역할을 합니다. 그러나 많은 설계 초보자에게 평면도를 그리는 것은 복잡하고 어려운 작업처럼 보입니다. 오늘은 디자인 초보자로서 어떻게 빠르게 시작하여 실용적이고 아름다운 평면도를 그릴 수 있는지에 대해 논의하겠습니다.
Ⅰ.평면도의 개념
먼저 평면도가 무엇인지 명확히 해야 합니다.
간단히 말해서 평면도는 선, 모양 및 기호를 사용하여 공간이나 영역의 구조, 레이아웃 및 크기를 나타내는 2차원 도면입니다. 입체 모형에 비해 평면도가 더욱 간결하고 명확해 직접 들어가지 않고도 실제 공간을 명확하게 이해할 수 있다.

Ⅱ.평면도의 적용 시나리오
가정 장식
꾸미기 전에 집 평면도를 그리는 것은 방의 배치를 계획하고, 가구의 크기와 배치를 선택하고, 장식 효과가 예상한 대로인지 확인하는 데 도움이 될 수 있습니다.

사무실 배치
기업과 팀에게 합리적인 사무실 배치는 업무 효율성과 직원 만족도를 향상시킬 수 있습니다. 평면도를 작성함으로써 사무실 공간의 기능적 구역화 및 동선 설계를 최적화할 수 있습니다.

매장 디스플레이
소매업계에서 매장 디스플레이 레이아웃은 고객의 쇼핑 경험과 제품 판매에 직접적인 영향을 미칩니다. 평면도는 매장 소유자가 제품 배치, 판촉 영역 디자인 및 고객 흐름을 계획하는 데 도움이 될 수 있습니다.

건축 디자인
건축 설계에는 보다 정교한 3차원 모델링 및 렌더링 기술이 포함되는 경우가 많지만, 평면도는 건축 설계 프로세스의 필수적인 부분으로 남아 있습니다. 이는 건축가와 엔지니어가 건물의 전체 구조와 레이아웃을 이해하는 데 도움이 됩니다.

Ⅲ.평면도 작성 시 주의사항
평면도를 그릴 때 다음 사항에 유의해야 합니다.
정확한 치수: 평면도를 그리기 전에 공간의 실제 치수를 정확하게 측정하여 도면의 정확성과 실용성을 보장하십시오.
일관된 비율: 그리기 과정에서 시각적 왜곡과 오해를 피하기 위해 각 요소의 비율을 일관되게 유지합니다.
명확한 라벨링: 중요한 요소와 세부 사항은 다른 사람들이 이해하고 사용할 수 있도록 명확하게 라벨을 붙이고 설명해야 합니다.
미학에 주의하세요: 평면도의 주요 기능은 공간의 레이아웃과 구조를 표현하는 것이지만 미학에도 주의를 기울여야 합니다. 합리적인 색상 매칭, 선 굵기, 그래픽 선택으로 평면도의 전체적인 효과를 높일 수 있습니다.
Ⅳ.평면도 그리는 방법
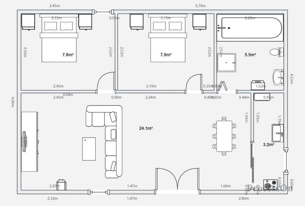
평면도 그리기를 위한 전문 도구는 강력한 그리기 기능을 갖춘 CAD입니다. 그러나 가정 장식, 사무실 레이아웃, 매장 디스플레이 및 기타 일상 생활 시나리오에만 사용하는 비전문가의 경우 CAD 작업이 너무 복잡합니다. ProcessOn은 번거로운 작업이 필요하지 않습니다. 간단히 요소를 끌어서 놓기만 하면 전문적인 평면도를 빠르게 구축할 수 있어 초보 설계자도 전문적인 평면도를 쉽게 그릴 수 있습니다.
평면도 만들기→
1. 평면도 작성
먼저 ProcessOn 개인 파일 페이지에 들어가서 왼쪽 상단에 있는 New - Flowchart를 클릭합니다.
2. 그래픽 라이브러리에 평면도 추가
더 많은 그래픽을 클릭하고 그래픽 관리에서 평면도를 찾아 필요에 따라 특정 그래픽 카테고리를 확인하세요. 예를 들어 집 장식의 경우 벽, 문과 창, 주방과 욕실, 인테리어, 가전 제품을 확인할 수 있습니다. 확인 후 그래픽 카테고리가 왼쪽 그래픽 라이브러리에 나타납니다.

3. 기본 설정
먼저 방 유형을 선택하세요. 정사각형, L자형, T자형 방이 있습니다. 또한 외벽을 사용하여 실제 방 유형을 만들 수도 있습니다. 벽 요소 메뉴 바에서 설정 버튼을 선택하여 벽 두께를 설정하세요. 색상, 크기 표시 규칙 및 도면. 그런 다음 전체 집 크기를 수정하고 집의 실제 크기에 따라 내부 벽을 그립니다.

4. 문과 창문 디자인하기
벽에 문과 창 요소를 추가합니다. 문과 창의 크기는 모서리를 드래그하여 조정할 수 있습니다. 문과 창을 드래그하면 벽을 따라 이동하여 위치를 조정할 수 있습니다. 내부 개방/외부 개방.

5. 실내 공간 레이아웃 디자인
기본 요소를 조정한 후 내부 공간의 레이아웃 설계를 시작할 수 있으며 주방, 욕실, 침실 및 기타 공간의 내부 가전 제품, 가구 및 기타 요소를 해당 방에 배치하여 전체적인 집 디자인을 완성할 수 있습니다.

6. 공유 및 협업
평면도 오른쪽 상단에 있는 협업 공유를 클릭하면 그려진 평면도를 가족, 동료 또는 디자이너와 공유하여 탐색할 수 있습니다. 다른 사람이 평면도의 레이아웃을 수정하려는 경우 파일에 대한 공동작업 권한을 활성화하고 공유할 수 있습니다. 공동 설계를 위해 다른 사람들과 함께.
위의 내용은 평면도에 대한 자세한 소개 및 도면 튜토리얼입니다.
전체적으로 평면도를 그리는 것은 만만한 작업이 아닙니다. 기본 개념과 기법을 익히고 적절한 도구를 사용해 연습하기만 하면 디자인 초보자라도 빠르게 시작하여 실용적이고 아름다운 평면도를 그릴 수 있습니다. 이 글이 여러분의 그림 여행에 유용한 지침과 영감을 줄 수 있기를 바랍니다!